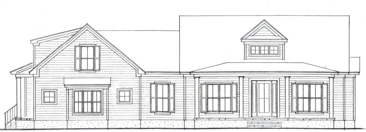
Description
New 2963 sq ft home under construction in beautiful Bridle Creek Equestrian on a great lot in Phase 3b-1 on 8290 Covert Drive. Comfortable split open floor plan with quality construction by Shaffer Homes. Main floor has 3 bedrooms and 2 1/2 baths, including spacious owners suite on the main floor, great room with gas fireplace, dining room, mud room, and a wonderful kitchen. Upstairs has bedroom/bonus room with full bath and rear of house has a large screened porch measuring 12 x 32 feet. Property has 5.11 acres and a large two car garage. Entire house is either oak wood floors, ceramic tile or carpet in bedrooms. Construction will be completed in Summer 2026.
-
4BEDS
-
5.11ACRES
-
3BATHS
-
11/2 BATHS
-
2,963SQFT
-
$326$/SQFT
School Ratings & Info
Description
New 2963 sq ft home under construction in beautiful Bridle Creek Equestrian on a great lot in Phase 3b-1 on 8290 Covert Drive. Comfortable split open floor plan with quality construction by Shaffer Homes. Main floor has 3 bedrooms and 2 1/2 baths, including spacious owners suite on the main floor, great room with gas fireplace, dining room, mud room, and a wonderful kitchen. Upstairs has bedroom/bonus room with full bath and rear of house has a large screened porch measuring 12 x 32 feet. Property has 5.11 acres and a large two car garage. Entire house is either oak wood floors, ceramic tile or carpet in bedrooms. Construction will be completed in Summer 2026.
Related Properties
© 2026 Aiken Association of REALTORS®. All rights reserved. IDX information is provided exclusively for consumers' personal, non-commercial use and may not be used for any purpose other than to identify prospective properties consumers may be interested in purchasing. Information is deemed reliable but is not guaranteed accurate by the MLS or Southeastern Residential. Data last updated: 2026-03-07T09:48:21.443.
