Description
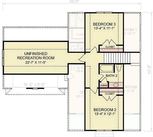
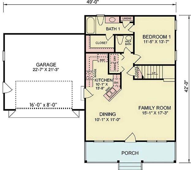
NEW CONSRUCTION Presale in the highly desired subdivision Orchard Estates located near Pine Ridge Golf Club! The Lisbeth Plan features a modern farmhouse design with an open floor plan. The owner's suite is located on the main level with a spacious walk-in closet. Second floor includes 2 bedrooms and an unfinished bonus room. Granite countertops. Stainless steel appliances in kitchen. Flooring is tung and groove laminate flooring in luxury vinyl in living areas, bathrooms and laundry with carpet in the bedrooms. Upgrade options available. Picture is for illustration purposes only, this is a pre-construction and subject to change. *AGENT RELATED TO OWNER
-
3BEDS
-
0.19ACRES
-
2BATHS
-
11/2 BATHS
-
1,980SQFT
-
$162$/SQFT
School Information
Description
NEW CONSRUCTION Presale in the highly desired subdivision Orchard Estates located near Pine Ridge Golf Club! The Lisbeth Plan features a modern farmhouse design with an open floor plan. The owner's suite is located on the main level with a spacious walk-in closet. Second floor includes 2 bedrooms and an unfinished bonus room. Granite countertops. Stainless steel appliances in kitchen. Flooring is tung and groove laminate flooring in luxury vinyl in living areas, bathrooms and laundry with carpet in the bedrooms. Upgrade options available. Picture is for illustration purposes only, this is a pre-construction and subject to change. *AGENT RELATED TO OWNER
© 2026 Aiken Association of REALTORS®. All rights reserved. IDX information is provided exclusively for consumers' personal, non-commercial use and may not be used for any purpose other than to identify prospective properties consumers may be interested in purchasing. Information is deemed reliable but is not guaranteed accurate by the MLS or Southeastern Residential. Data last updated: 2026-03-11T14:48:20.477.
